Обяви За нас Контакти
Продава 2-СТАЕН
град Варна, Виница
86 500 €
169 179.30 лв.

(1 331 €, 2 603.21 лв./m2)
Цената е с включено ДДС
История на цената
Публикувана в 12:56 на 12 януари, 2026 год.
Обявата е посетена 184 пъти.
Площ:
65 m2
Етаж:
1-ви от 4
Строителство:
Тухла, Ще бъде въведен в експлоатация 2028 г.

Описание на имота:


ТОПИММО предлага за продажба апартаменти в нов проект в кв. Виница . Нова и модерна сграда с асансьор, паркова среда с обособена детска площадка, барбекю зона - БЕЗ такса поддръжка.

Достъп по асфалтов път, в близост до гора, същевременно в близост до автобусна спирка, хипермаркет (10мин. пешеходно разстояние) и всичко необходимо за нуждите и комфорта на едно домакинство.

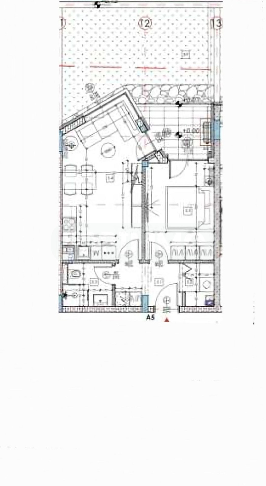
Имотът, който Ви представяме се намира на първи етаж, с чиста площ от 50.4 кв.м. и следното разпределение: антре с ниша за килер, всекидневна с кухненска част, спалня, санитарен възел, плочник с излаз от двете стаи, бонус към апартамента-веранда, която можете да озелените и да се наслаждавате на тишината.

Имотът ще бъде завършен по БДС стандарт от фирма наложила се на пазара с качествени и луксозни сгради. С възможност за довършване до ключ .

В сградата предлагаме и други апартаменти с различна площ, етажност и такива с морска панорама.

С възможност за закупуване на паркомясто. Гъвкави схеми на плащане.

Можем да организираме оглед в удобно за вас време, свържете се с нас! Референтен номер: PL-4652
Особености
Тухла
За контакт:
0889000885
Агенция:
ТОПИММО
0889000885
ТОПИММО logo
Медал за прослужено време
В imot.bg от 2020 г.
topimmo.imot.bg
Адрес:
област Варна, гр. Варна, ул. Преслав 7
http://www.topimmo.bg
ИЗПРАТИ ЗАПИТВАНЕ
ИЗПРАТИ ЗАПИТВАНЕТО

Продава 2-СТАЕН
град Варна, Виница
Обява: 1b176821540505731

86 500 €
169 179.30 лв.
История на цената
(1 331 €, 2 603.21 лв./m2)

Цената е с включено ДДС
ЗАПАЗИ ОБЯВАТА

Местоположение: град Варна, Виница

Допълнителни данни за имотите в района и сравнение с други райони

Покажи

Период

и 1 месец

* Средните цени са определени чрез медианна стойност