Обяви За нас Контакти
Продава КЪЩА
област Варна, с. Здравец
279 500 €
546 654.49 лв.

(1 300 €, 2 542.58 лв./m2)
Цената е с включено ДДС
История на цената
Коригирана в 11:54 на 27 октомври, 2025 год.
Обявата е посетена 1263 пъти.
Площ:
215 m2
Двор:
463 m2
Строителство:
Тухла, 2026 г.

Описание на имота:


ТОПИММО предлага за продажба модерна къща ново строителство в затворен комплекс от 6 къщи в село Здравец. Пътят до там е в отлично състояние и наскоро ремонтиран, което осигурява бърз и удобен достъп до центъра на Варна само на 15 минути с кола.

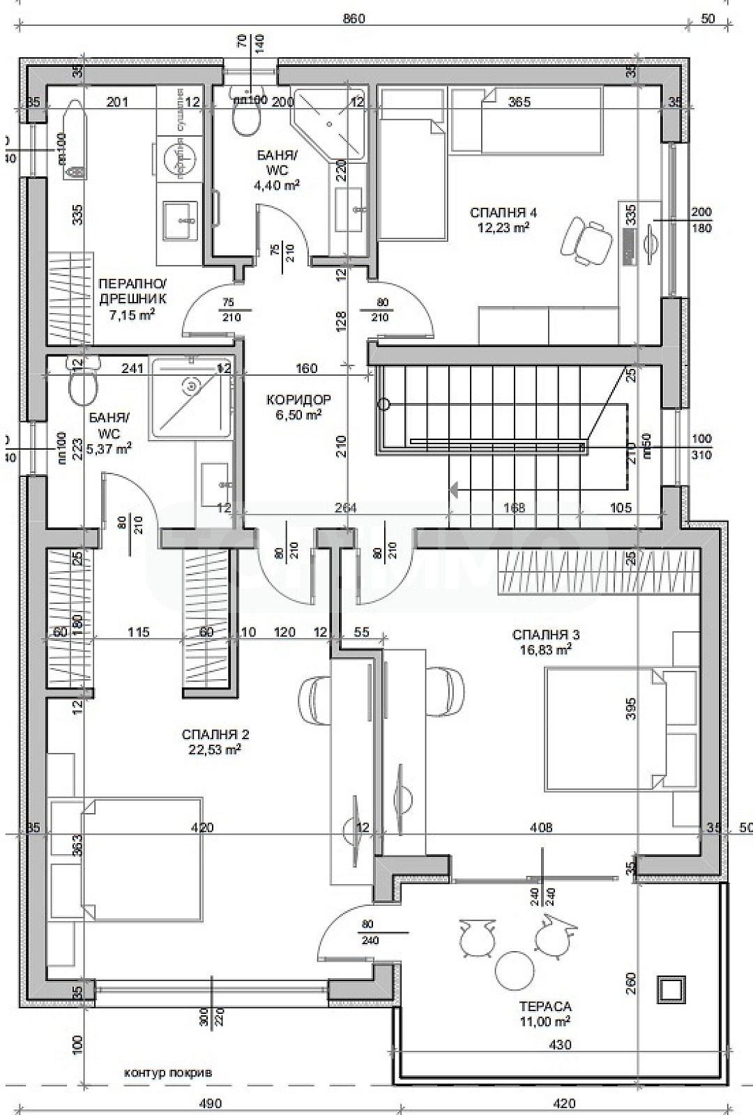
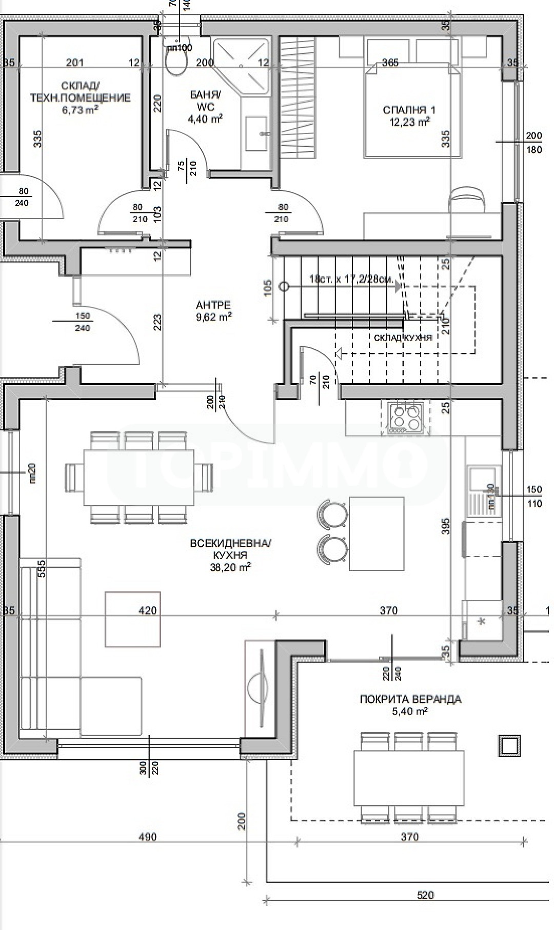
Къщата е проектирана с просторни и светли помещения, осигуряващи максимална функционалност и комфорт. Първи етаж се състои от входно антре, всекидневна с кухненска част, от която се излиза на покрита веранда, спалня, баня с тоалетна, складово помещение. Удобно стълбище отвежда към втори етаж, където са разпределени 3 спални, едната с тераса, баня с тоалетна и перално помещение/дрешник.

Високата енергийна ефективност допринася за намалени разходи за отопление и охлаждане, осигурявайки уют през всички сезони. Отоплението на къщата, чрез парно с термопомпа, охлаждане с климатизация. Собственият двор е чудесно място за семейни събирания и отдих сред природата.

Предлага се възможност за довършителни работи до ключ, обзавеждане, интериорен дизайн на клиента.

Предстоящо откриване на строителна площадка месец януари 2025 г. Срок за завършване: месец юни 2026 г.

Схема на плащане:
2 000 Евро за запазване на имота до подписване на предварителен договор за покупко-продажба
20% на подписване на предварителен договор за покупко-продажба при издадено Разрешение за строеж
30% на акт 14
40% на акт 15
10% на акт 16

Село Здравец е идеално за еко туризъм, известно с чистия си въздух и красивата природа. Мястото привлича любители на природата и активния отдих, а същевременно предоставя спокойствие и тишина.

Инвестирайте в качествено жилище, където удобството и природната красота са в хармония.

Можем да организираме оглед в удобно за вас време, свържете се с нас! Референтен номер: AP-3701
Виж всички обяви в topimmo.bazar.bg или тук
Особености
Тухла
В строеж
В затворен комплекс
За контакт:
0882795728
Агенция:
ТОПИММО
0889000885
ТОПИММО logo
Медал за прослужено време
В imot.bg от 2020 г.
topimmo.imot.bg
Адрес:
област Варна, гр. Варна, ул. Преслав 7
http://www.topimmo.bg
ИЗПРАТИ ЗАПИТВАНЕ
ИЗПРАТИ ЗАПИТВАНЕТО

Продава КЪЩА
област Варна, с. Здравец
Обява: 1j173097198567390

279 500 €
546 654.49 лв.
История на цената
(1 300 €, 2 542.58 лв./m2)

Цената е с включено ДДС
ЗАПАЗИ ОБЯВАТА

Местоположение: област Варна, с. Здравец