Обяви 0 За нас Контакти
Продава КЪЩА
област Варна, с. Куманово
255 000 €
498 736.65 лв.

(1 491 €, 2 916.14 лв./m2)
Цената е с включено ДДС
История на цената
Коригирана в 11:39 на 16 април, 2026 год.
Обявата е посетена 544 пъти.
Площ:
171 m2
Двор:
638 m2
Строителство:
Тухла, Ще бъде въведен в експлоатация 2027 г.

Описание на имота:


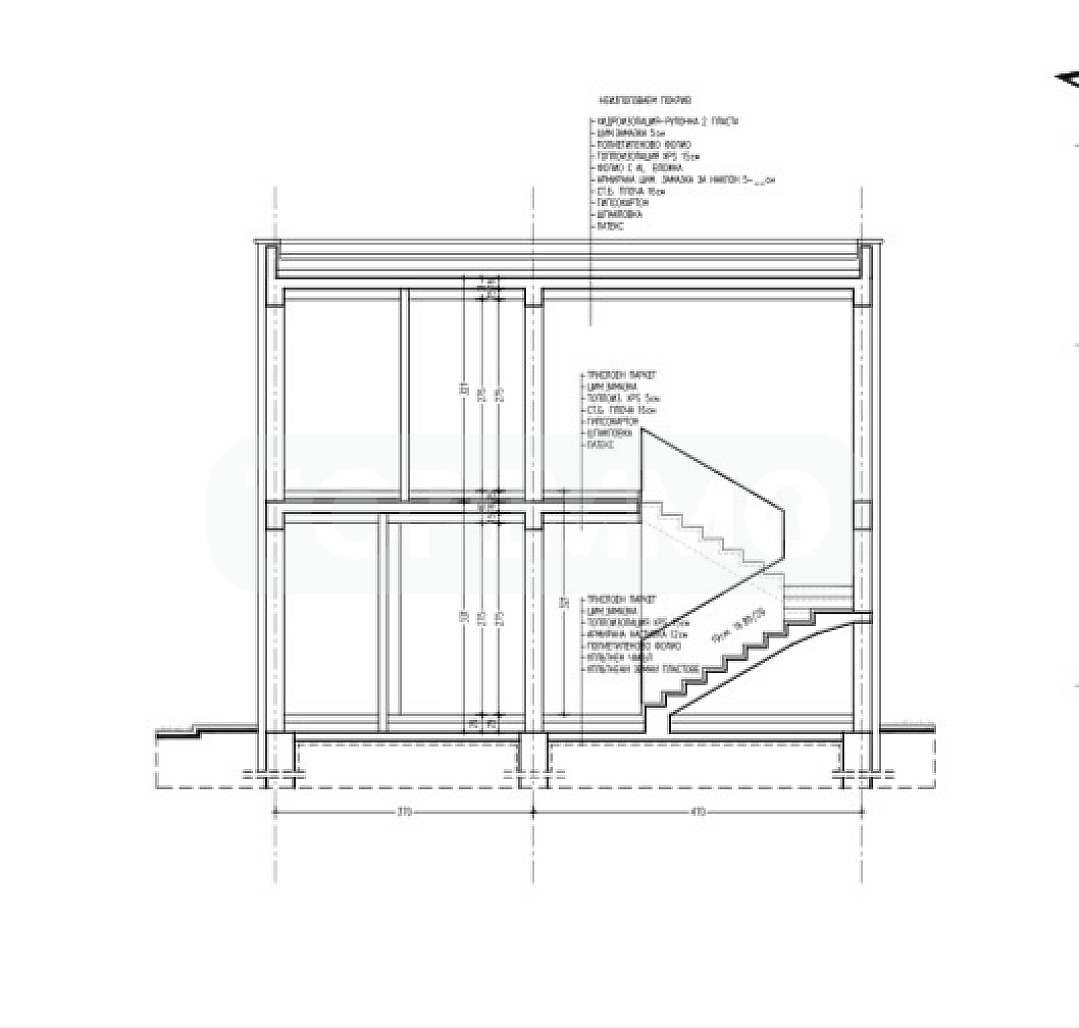
ТОПИММО предлага за продажба двуетажна монолитна къща в строеж в село Куманово. Висококачествено ново строителство, изпълнено по всички стандарти, стилна архитектура с правилни форми на стаите за удобно обзавеждане на вашия нов дом. Парцел с площ 638 кв.м., къща с РЗП 170 кв.м.

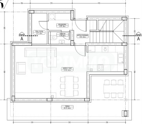
Първи етаж: антре, просторна всекидневна 37 кв.м. с излаз на веранда, техническо помещение/килер, санитарен възел, стълбище към втори етаж;
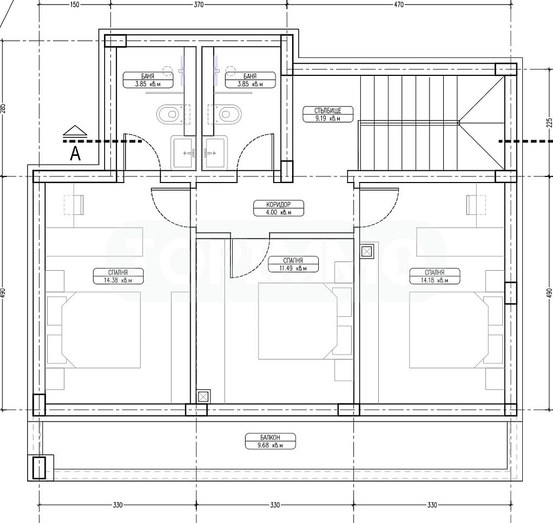
Втори етаж: коридор, родителска спалня 14.4 кв.м. със собствен санитарен възел, втора спалня 11.5 кв.м., трета спалня 14.2 кв.м., втори санитарен възел на етажа, трите стаи с излаз на тераса.

Къщата се издава по БДС с висококачествени материали, входна врата, изградени ВиК, ел. инсталация.

Този имот дава възможност за отглеждане на вашите деца в здравословна и спокойна среда, а на вас удобството да живеете в близост до града, за да не губите връзката с динамичния начин на живот.

Можем да организираме оглед в удобно за вас време, свържете се с нас! Референтен номер: PL-4675
Особености
Тухла
За контакт:
0889000885
Агенция:
ТОПИММО
0889000885
ТОПИММО logo
Медал за прослужено време
В imot.bg от 2020 г.
topimmo.imot.bg
Адрес:
област Варна, гр. Варна, ул. Преслав 7
http://www.topimmo.bg
ИЗПРАТИ ЗАПИТВАНЕ
ИЗПРАТИ ЗАПИТВАНЕТО

Продава КЪЩА
област Варна, с. Куманово
Обява: 1j176889561086444

255 000 €
498 736.65 лв.
История на цената
(1 491 €, 2 916.14 лв./m2)

Цената е с включено ДДС
ЗАПАЗИ ОБЯВАТА

Местоположение: област Варна, с. Куманово